
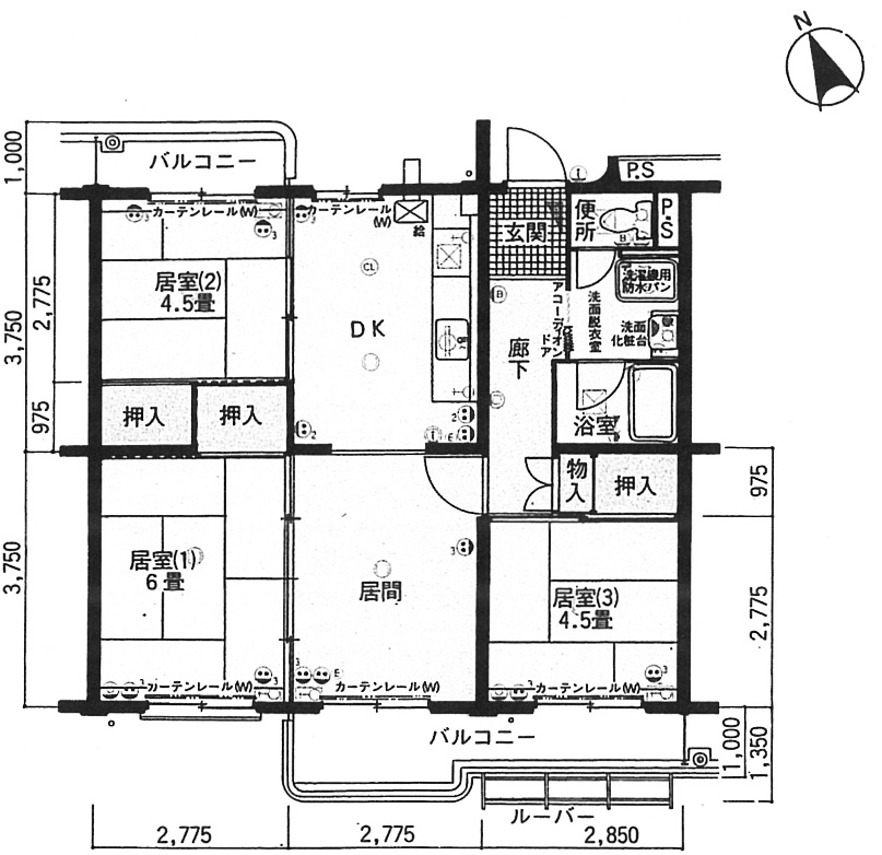
Data:分譲マンション / 賃料 81,000円 / 管理費 7,000円 /専有面積 63㎡ バルコニー 9.43㎡ 合計72.43㎡
京都市左京区高野西開町
京都市左京区高野西開町
| 物件名:東大路高野第1住宅3棟 5階 | 種別:マンション |
| 用途:居住用 | 構造:鉄筋コンクリート造 |
| 敷金:1月分 | 築年:1979年7月 |
| 礼金:1月分 | 間取:3LDK |
| 保証金:無し | 交通:茶山・京都芸術大学駅 徒歩7分 |
| 更新料:無し | 方位:南向き |
| 契約種別:普通借家 2年 | 現況:空家 |
| 保証会社:要加入 | 入居条件:二人入居、ルームシェア可 |
| 火災保険:要加入 | 取引態様:仲介 |
| 設備:ケーブルTV、自動二輪置き場、原付置き場、駐輪場、ガスキッチン、独立洗面台、バス・トイレセパレート、エアコン、室内洗濯機設置可、エレベーター無し | 備考:ハウスクリーニング(退去時)55,000円、駐車場 12,000円/月、駐輪 1,200円/年、ペット不可 |


竣工当時のパンフレットより抜粋


































